Laihia, Vallintie 9, 3h+k+khh+kph+s

KESKUSTA, 3H+K+KHH+KPH+S, 98 m²

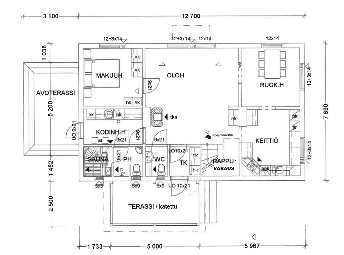
Vallintie 9, omakotitalo


Ryhdikäs hirsirunkoinen omakotitalo Laihian keskustassa.

Tämä rakennustiedon mukaan v.1947 rakennettu talo on laajasti remontoitu n. 2007-2008, jolloin rakennuksen perusrakenteet on avattu kauttaaltaan ja rakenteet, pinnat ja järjestelmät on päivitetty nykymuotoonsa. Remontissa huonetiloja muutettu alakerran osalta ja suunniteltu myös lisää huonetilaa yläkertaan kahden makuuhuoneen ja aulatilojen osalta, mutta ei toteutettu.

Oma 900 m² asemakaavatontti, jossa rakennusoikeutta kaavan mukaan 250 m². Kiinteistö on liitetty kunnallistekniikkaan (vesi-, viemäri- ja sähköverkko).

Lisätiedot ja esittelyt Henry Mäkelä p.0503422150 / henry.makela@hrmakela.fi


Katso kaikki kuvat


3H+K+KHH+KPH+S, 98 m²

KESKUSTA, Vallintie 9, 66400 Laihia

Velaton hinta: 80 000,00 €

Rakennus

Rakennusvuosi: 1947
Lisätietoja rakennusvuodesta: Alkuperäinen rakennusvuosi n. 1947, remonttivuosi 2007-2008.
Rakennusmateriaali: puu, hirsi Tuulettuva alapohja, runkorakenne hirttä/puuta.
Katto: Tyyppi: Harja Kate: Pelti
Asuintilojen pinta-ala: 98 m²
Lisätietoja pinta-alasta: Rakennuspiirisusten mukainen huoneistoala 98 m2. Kiinteistöverossa kokonaispinta-ala 195m2 ja rakennusrekisterissä rakennusala 88 m2. Yläkertaan suunniteltu huonetiloja, joita ei ole toteutettu.
Muut tilat: 0 m²
Energiatodistus: Ei lain edellyttämää energiatodistusta.
Lämmitysjärjestelmä: puu, sähkö
Huoneluku: 3H+K+KHH+KPH+S
Keittiö: Varustus: jää/viileäkaappi, liesituuletin, astianpesukone, kiinteät valaisimet. Työtasot: laminaatti. Lattia: laminaatti. Seinät: maalattu
Pesutilat: Varustus: wc-istuin, suihku, peilikaappi Seinät: kaakeli Lattia: laatta
Erillinen WC Varustus: Seinät: maalattu Lattia: laatta Lukumäärä: 1
Kodinhoitohuone: Varustus: pesukoneliitäntä, lattialämmitys. Lattia: laatta
Sauna: Oma sauna. Kiukaan tyyppi: sähkökiuas
Makuuhuoneet: Seinät: maalattu Lattia: laminaatti Lukumäärä: 2
Olohuone: Seinät: maalattu Lattia: laminaatti
Muut tilat: Eteinen
Takka: takka. Varaava takka
Säilytystilat: Yläpohjassa varastotilaa, ulkorakennuksessa säilytystilaa.
Tehdyt korjaukset: - Laajempi remontti n.2007/2008, jolloin purettu alakerta seinärungolle ja uusittu alapohjarakenne täysin, LVIS-järjestelmät yms. Suunniteltu yläkertaan huonetiloja, joita ei ole toteutettu.
Muuta kauppaan kuuluvaa: Puutavara asuinrakennuksen yläkerrassa, pyykinpesukone
Kauppaan ei kuulu: Traktori
Kunto: tyydyttävä; Kuntotarkastus teetetään enne kauppoja.

Kiinteistötiedot

Kiinteistötunnus: 399-405-3-70
Taloyhtiön nimi: KARJALA
Tyyppi: omakotitalo
Tontti: Tasamaatontti, 900m², oma
Vesijohto kunnan
Viemäri: kunnan

Muita tietoja

Kaavoitus: Asemakaava
Rakennusoikeus: 250
Vapautuu: heti
Lisätietoja: oma sauna, tie perille, sähköliittymä siirtyy, kulku suoraan ulos

Asumiskustannukset

Kiinteistövero: 233,00 €/vuosi
Muut maksut / lisätietoa maksuista: Vuosikäyttöarvio sähkönkulutukselle n. 9200 kWh/vuosi, johon pystyy vaikuttamaan paljon takan käytöllä.

Hinta

Myyntihinta: 80 000,00 €

Valokuvat

Lisätiedot

Mäkelä Henry
Kiinteistönvälittäjä LKV
050 3422150
henry.makela@hrmakela.fi

Yhteydenottolomake

  • Kenttä on validointitarkoituksiin ja tulee jättää koskemattomaksi.
  • This field is hidden when viewing the form
  • This field is hidden when viewing the form
  • Tietosuojaseloste